最新资讯
数字式织物撕裂强度测试实验方法
一、概述
织物撕破又叫撕裂,是指织物边缘受到集中负荷的作用而撕开的现象。织物在使用过程中,衣物被物体钩住,局部纱线受力拉断,使织物形成条形或三角形裂口,也是一种撕裂现象。撕破试验常用于帐篷、军服、吊床、雨伞等机织物,目前我国对经树脂整理的棉型织物及毛型化纤纯纺或混纺的精梳织物进行撕破强力试验,用于评定织物经树脂整理后的耐用性(或脆性)。在织物撕裂强力测定中,撕裂强力是指在规定条件下使试样上初始切口扩展所需的力,撕破试验不适用于机织弹性织物、针织物及可能产生撕裂转移的经纬向差异大的织物和稀疏织物。常用的测试方法主要是舌形法、梯形法和冲击摆锤法。本实验先介绍舌形法和梯形法。
二、试验目的与要求
根据国家标准及有关试验方法,掌握织物舌形试样和梯形试样法撕破强力的测定、撕裂特征和测试原理,了解几种撕破强力测定结果产生差异的原因和适用范围。
三、标准
3.1采用标准GB/T 3917.2 《纺织品 织物撕破性能第2部分 舌形试样撕破强力的测定 》 、 GB/T 3917.3《纺织品 织物撕破性能第3部分 梯形试样撕破强力的测定 》
3.2相关标准GB 6529《纺织品的调湿和试验用标准大气》
四、定义
本标准采用下列定义。
1、等速伸长试验仪 constantrateofextension(CRE)testing machine
在整个试验过程中,一只铗钳是固定的,另一只铗钳作等速运动的一种拉伸试验仪。
2、隔距长度 gaugelength
试验装置上两个有效夹持线之间的距离。
3、撕破强力 tearforce
在规定条件下,使试样上初始切口扩展所需的力。
4、峰值 peak
在强力-伸长曲线上,斜率由正变负点处对应的强力值。
5、撕破长度lengtho of tear
从开始施力至终止,切口扩展的距离。
6、单舌试样 trousershapedtestspecimen
在条形试样的短边中间切开一规定长度的切口,形成可供夹持的两条裤腿状试样。
![]() |
|
注:*为撕裂长度终点标记。 |
7、双舌试样 tongueshapedtestspecimen
在条形试样中切开规定间距和长度的两个切口,形成以供夹持的舌状试样(见图2)。
![]() |
|
注:*为撕裂长度终点标记。 |
五、原理
舌形试样夹入拉伸试验仪中,使试样切口线在上下铗之间成直线(见图3、图4)。开动机器将拉力施于切口方向,记录直至撕裂到规定长度内的撕破强力,并根据自动绘图仪绘出的曲线上的峰值或通过于装置计算出撕破强力。
|
六、取样
按产品标准的规定,或按有关方面的协议取样。
在没有上述要求的情况下,附录A给出取样示例。
附录B是从样品上裁取试样的一个示例;注意应避开折皱处、布边及织物上无代表性的区域。
七、仪器
1、等速伸长试验仪(CRE)
等速伸长试验仪应满足下列技术要求:
拉伸速度可调在100mm/min±10mm/min范围内。
在仪器使用范围内的任何一点显示或记录的撕破强力的大误差不得超过±1%,显示或记录的铗钳间距误差不得超过±1mm。
注:若所用仪器无法满足此要求,应在试验报告中写明。
若强力和伸长记录是通过数据采集芯片和软件获得的,则数据采集的频率至少应为8次/s。
隔距长度可设定为100mm。
2、夹持装置
仪器两只铗钳的中心点应在拉伸直线内,铗钳端线应与拉伸直线成直角,夹持面应在同一平面内。铗钳设计时应保证既能夹持住试样而不使其滑移,又不会割破或损坏试样。铗钳有效宽度根据试样类型而定。双舌试样,至少50mm;单舌试样,至少200mm。
3、裁样装置
所用装置好是裁样器或样板,能裁取如图1或图2所示的试样。
八、调湿和试验用大气
预调湿、调湿和试验用大气按GB 6529执行。
九、试样的制备
1、总则
每块样品裁取两组试样,一组为经向或纵向,另一组为纬向或横向。
每组试样应至少有五块试样或按协议更多一些。按第5章及附录B的规定,每两块试样不能含有同一根长度方向或横向的纱线。不能在距布边150mm内取样。
2、试样尺寸
①、单舌试样(见图1)为矩形长条,长220mm土2mm,宽50mm±1 mm,每个试样应从宽度方向的正中切开一长为100mm±1mm的平行于长度方向的裂口。在条样中间距未切割端25mm±1mm处标出撕裂终点。
如果有关双方协议可以使用宽度不是50mm的试样,附录D给出了关于使用宽条试样的建议。
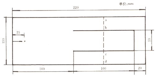
②、双舌试样(见图2)为矩形长条,长220mm±2mm,宽150mm±2mm,每个试样切开一个沿长度方向的(100mm±2mm)×(50mm±1mm)的舌形,距舌端的50mm±1mm处在试样的两边画一条直线abcd。在条样中间距未切割端25mm±1mm处标出撕裂终点。
3、试样的裁取
对机织物,每个试样平行于织物的经向或纬向作为长边裁取。试样长边平行于经向的撕裂称为"纬向撕破"',试样长边平行于纬向的撕裂称为"经向撕破"(见附录B)。
十、步骤
1、隔距长度设置
将拉伸试验仪的隔距长度设定为100mm。
2、拉伸速率设置
将拉伸试验仪的拉伸速率设定为100mm/min。
3、试样的安装
①、单舌试样:如图3所示将试样夹在铗钳中,每条裤腿各夹入一只铗钳中,切割线与铗钳的中心线对齐。试样的未切割端处于自由状态。注意保证每条裤腿固定于铗钳中使撕裂开始时是平行于切口且在撕力所施的方向上。不加预张力并避免松弛现象。
②、双舌试样:如图4所示将试样的舌头夹在铗钳的中心且对称,使直线bc刚好可见。将试样的两长条对称地夹入仪器的移动铗钳中,使直线ab和cd刚好可见,并使试样的两长条平行于撕力方向。注意保证每条舌形被固定于铗钳中能使撕裂开始时是平行于撕力所施的方向。不加预张力并避免松弛现象。
|
|
④、 操作
开动仪器使撕破持续拉至试样的终点标记处。
用记录仪或电子记录装置记录每个试样在每一织物方向的撕破强力(N)和撕破长度。
观察撕破是否是沿所施加力的方向进行以及是否有纱线从织物中滑移而不是被撕裂的现象。如果试样没有从铗钳中滑移的情况,且撕裂是沿着施力方向进行的,则此试验结果可被确认,否则结果应剔除。
如果五个试样中有三个或更多个试样的试验结果被剔除,则可认为此方法不适用于该样品。
如果协议增加试样,则好加倍试样数量。
十一、 结果的计算和表示
1、从记录纸记录的强力-伸长曲线上人工计算撕破强力
附录C给出了计算实例。
①、分割峰值曲线:从峰开始至后峰结束等分成四个区域。区域峰值舍去不用,其余三个区域内,在每个区域选择并标出两个高峰和两个低峰。
注
1 按上述规定进行计算而选取峰值时,该峰两侧强力下降段的绝对值至少超过上升段的绝对值10%,否则不应选取。
2 对高密织物,则应减慢记录仪走纸速率,以图纸峰值清晰为准。
②、 计算每个试样的12个峰值的算术平均值,单位为N。如果需要,可记录这三个区域内的大和小峰值。
注:人工计算只能取有限数目的峰值以节约时间,建议使用电子方式对所有峰值进行计算。
③、计算同方向的样品的撕破强力的总的算术平均值,以N表示,并保留两位有效数字。
④、如果需要,计算变异系数精确至o.1%和将按10.1.2试样的平均值计算所得的平均值四舍五入后的95%置信区间。
2、用电子装置计算
附录C给出了计算实例。
①、将个峰和后一个峰之间等分成四个区域,舍去个区域的峰值,记录余下三个区域内的所有峰值。峰值的确认按10.1.1规定。
②、用按lo.2.1记录的所有峰值计算试样撕破强力的算术平均值。
③、以每个试样的平均值计算出所有同方向的试样撕破强力的总的算术平均值,以N表示,并保留两位有效数字。
④、如果需要,计算出变异系数精确至o.1%和将按10.2.2试样的平均值计算所得的平均值四舍五入后的95%置信区间。
十二、试验报告
试验报告应包括以下内容。
1、一般资料
a)参照本标准,试验日期;
b)样品规格,如果需要可说明取样程序;
c)试样数量,剔除试验结果数及剔除原因;
d)撕裂特征;
e)人工或电子装置计算的平均值;
f)任何偏离本标准的细节。
2、试验结果
①、 经向和纬向撕破强力的总平均值,单位N。如果只有三个或四个试样是正常撕破的,应另外分别注明每个试样的试验结果。
②、如有约定,给出每个试样大值的平均值,单位N。
③、如需要,给出变异系数(%)。
④、如需要,给出95%置信区间,单位N。
⑤、如需要,列出每块试样的小和大撕破强力,单位N。
更多相关 数字式织物撕裂仪 了解:http://www.shuzisipo.com/productlist/list-5-1.html
相关新闻
- 24-01-04■雷达液位计的原理
- 24-01-04■音量检测仪的工作原理
- 24-01-04■逻辑分析仪的工作原理
- 24-01-04■氦质谱检漏仪的原理
- 24-01-04■供水变频器的运行原理
- 24-01-02■超声波料位计的原理特点
- 24-01-02■医用培养箱的原理和结构
- 24-01-02■感应电度表的测量原理



















